| Basse saison | Moyenne saison | Haute saison |
|---|---|---|
| € | € | € |
Appartement
Épinay sur Seine (93800)
Réf.
3018010610
Réf.
199199
- Surface NC
- Pièce(s) NC pièce(s)
- Chambre(s) 3 chambre(s)
- Terrain NC
Spécial Investisseurs !
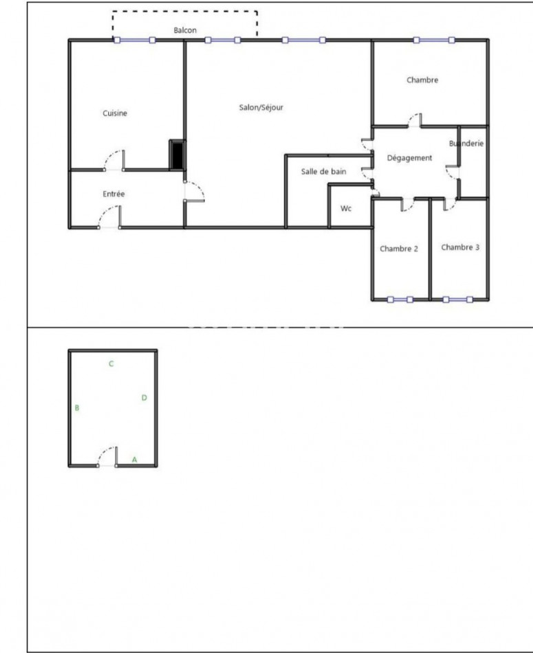
À Épinay-sur-Seine, au sein d’une copropriété bien entretenue et idéalement située à proximité des commerces, des écoles et des transports, découvrez ce grand appartement F4.
Il se compose de :
• Une entrée,
• Un salon-séjour lumineux donnant sur un balcon,
• Trois chambres,
• Une salle de bains,
• Un WC indépendant.
• Une cave complète ce bien.
Transports à proximité :
Plusieurs lignes de bus,
Tramway T8 à quelques minutes à pied,
Gare Transilien (ligne H) à proximité,
Accès facile au RER C pour rejoindre rapidement Paris et la région.
Un locataire est actuellement en place (fin de bail).
Pour plus d'informations ou pour organiser une visite, contactez François Vaz.
Les informations sur les risques auxquels ce bien est exposé sont disponibles sur le site Géorisques
Bien soumis au statut juridique de la copropriété. Nb de lot :0. Charges annuelles de copropriété (Montant moyen annuel quote-part du budget prévisionnel vendeur) : 2900.00 €.
À proximité
de ce bien ...
Plus d'informations sur ce bien
ou
Envoyer
cette annonce à un ami
cette annonce à un ami
Votre E-mail a bien été envoyé.
Une erreur s'est produite lors de l'envoi de votre e-mail.
Veuillez réessayer à nouveau
Veuillez réessayer à nouveau








































