| Basse saison | Moyenne saison | Haute saison |
|---|---|---|
| € | € | € |
Terrain
Argenteuil (95100)
- Surface 281 m²
- Pièce(s) NC pièce(s)
- Chambre(s) NC chambre(s)
- Terrain NC
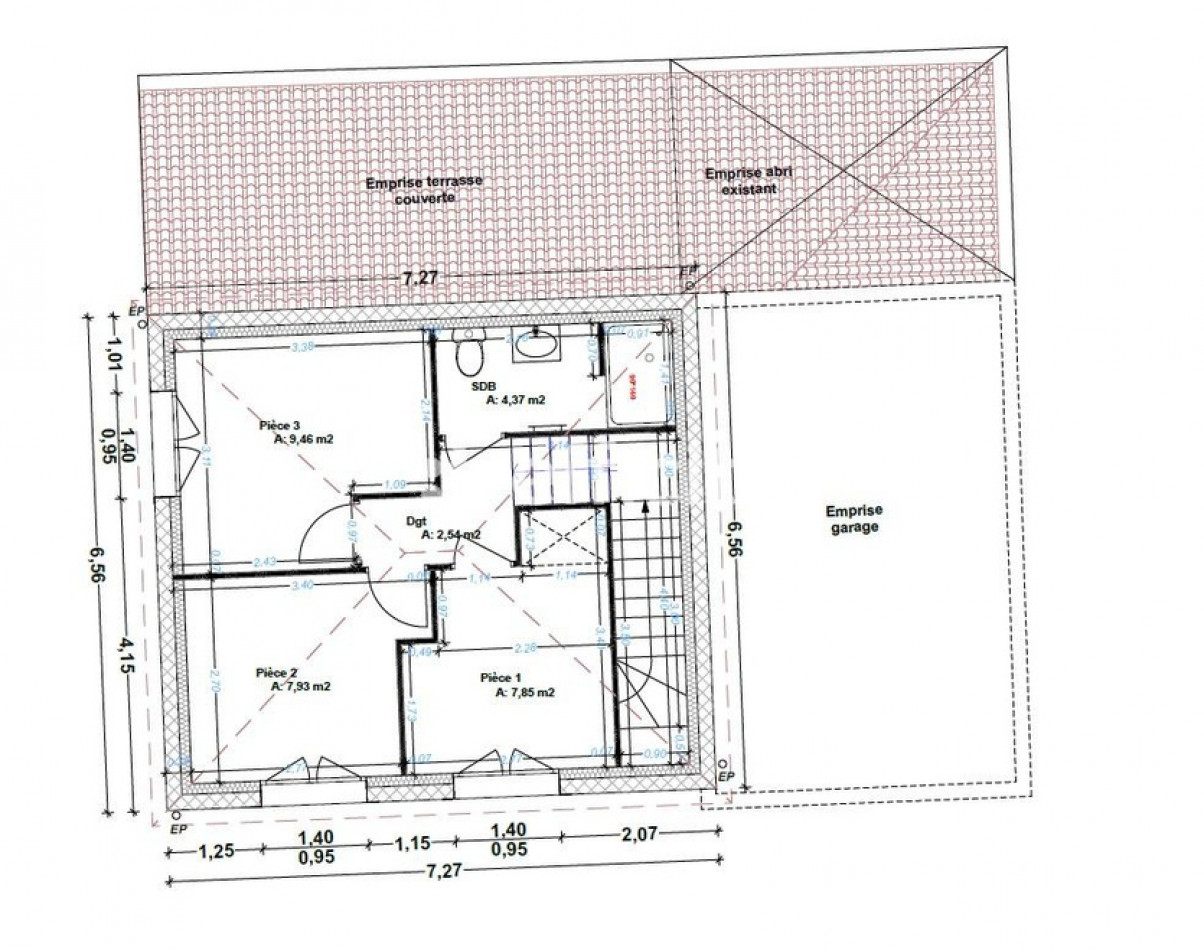
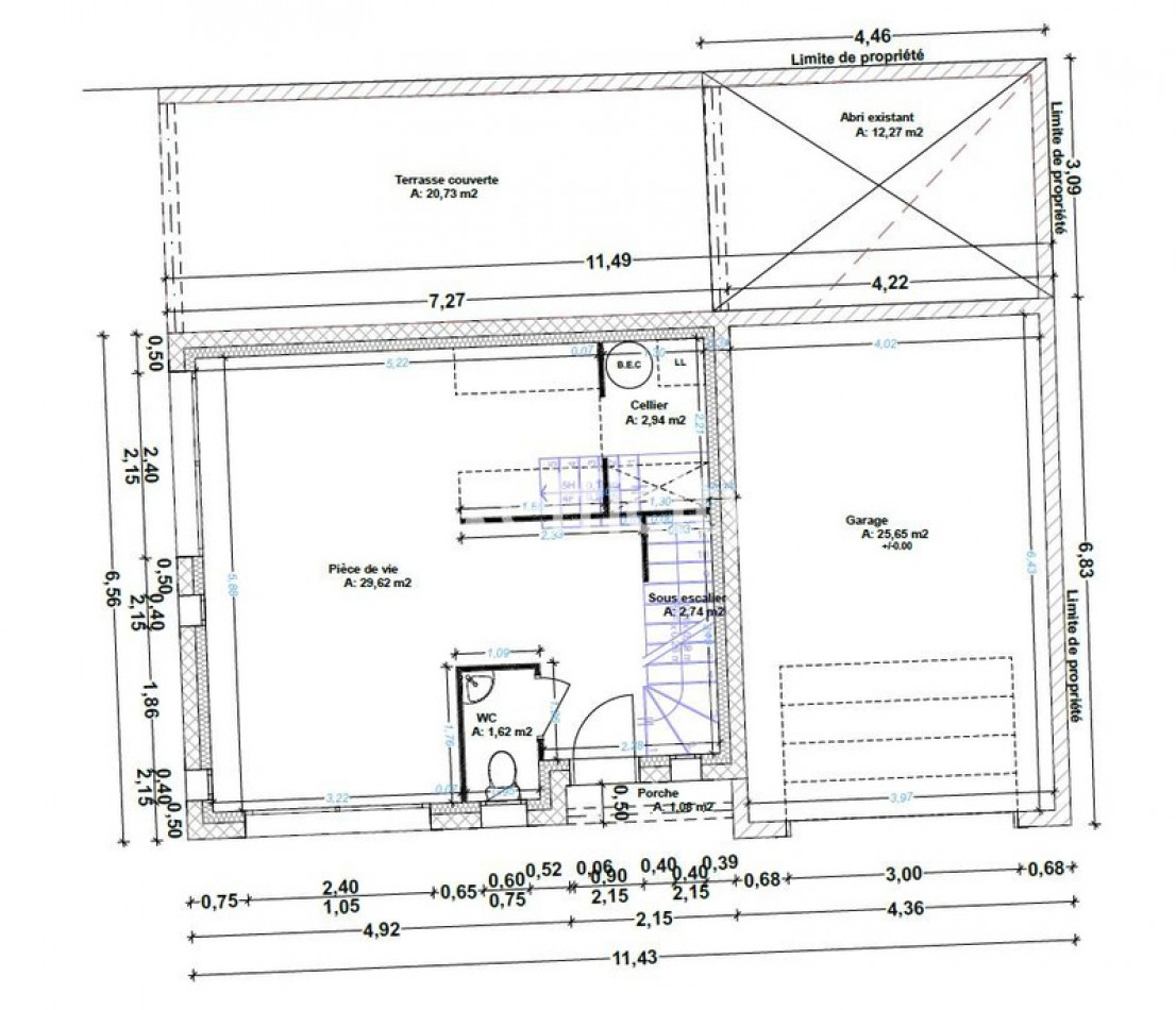
Terrain constructible avec permis déjà purgé. Quartier Orgemont à 8 minutes de la Gare d'Argenteuil–
Groupe C2i by Efficity vous propose ce terrain à bâtir d'une superficie de 281 m² idéalement situé dans le très recherché quartier Orgemont à Argenteuil.
Permis de construire accordé et purgé de tout recours pour une maison individuelle R+1 d'environ 104 m² de surface plancher.
Libre constructeur, vous êtes totalement libre d'adapter ou de reprendre le projet existant selon vos envies.
Localisé dans un environnement résidentiel calme et pavillonnaire, ce terrain bénéficie d'une exposition optimale Sud, Ouest et Est.
À proximité immédiate des écoles, des commerces et à seulement 8 minutes à pied de la Gare d'Argenteuil, cette parcelle est idéale pour un projet familial.
Façade généreuse de 20 mètres, permettant la réalisation d'une maison confortable avec garage intégré et stationnement sur la parcelle.
Prix : 199 000€ FAI (185 000€ net vendeur + 14 000€ honoraires agence à charge acquéreur).
Contactez-moi dès aujourd'hui pour plus d'informations ou organiser une visite : François VAZ, EffiCity Argenteuil au 06.61.77.97.66.
cette annonce à un ami
Veuillez réessayer à nouveau





















































