| Basse saison | Moyenne saison | Haute saison |
|---|---|---|
| € | € | € |
Maison
Belfort (90000)
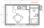
- Surface 15 m²
- Pièce(s) NC pièce(s)
- Chambre(s) 1 chambre(s)
- Terrain NC
LE LODGE LIBERTÉ 15 M² – LE COMPACT QUI CHANGE TOUT !
(Produit neuf vendu sans terrain – non soumis au DPE ni au GES – sans frais de notaire)
Christelle, mandataire immobilier C2i by Efficity, vous propose FAI un Lodge Liberté 15 m², clé en main, idéal pour : bureau, atelier, studio d’appoint ou location courte durée. Chaque mètre carré est pensé pour un confort maximal et une utilisation polyvalente.
CARACTÉRISTIQUES
Modèle Liberté 15 m² – 3 x 5 m – à partir de 32 559 € TTC
Livraison partout en France, installation rapide et clé en main
Structure mobile installable sur votre parcelle (selon réglementation locale)
POINTS FORTS
Optimisation parfaite de l’espace
Grandes ouvertures et luminosité naturelle
Design moderne et finitions soignées
Polyvalent : bureau, studio, chambre d’amis ou location
AUTRES MODÈLES
Liberté 20 m² – 3 x 6,7 m – dès 40 849 € (cuisine et salle d’eau optionnelles)
Liberté 30 m² – 3 x 10 m – dès 53 599 €
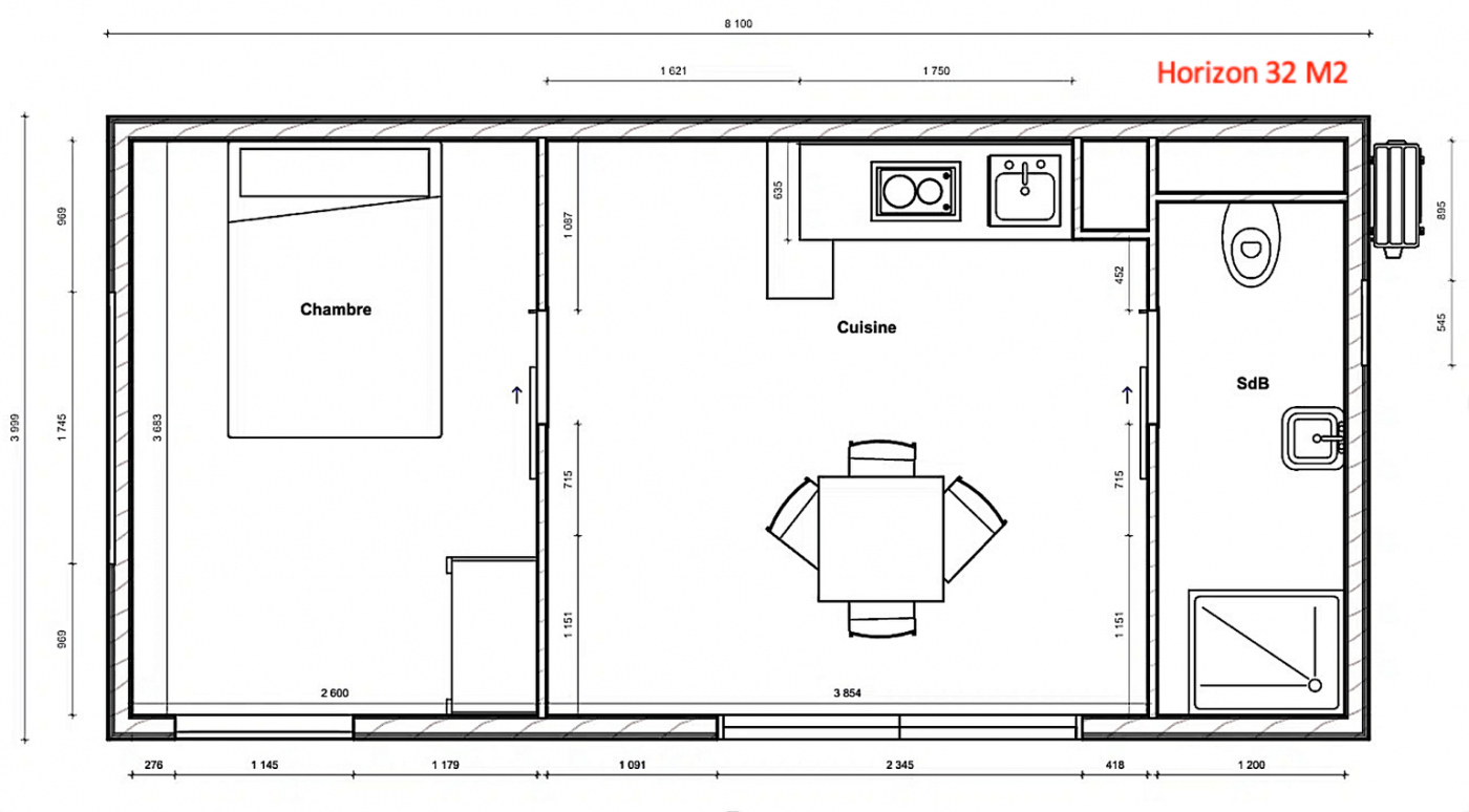
Horizon 32 m² – 4 x 8 m – dès 55 229 €
Horizon 40 m² – 4 x 10 m – dès 73 630 €
Horizon 50 m² – 4 x 12,5 m – dès 100 000 €
POURQUOI CHOISIR UN LODGE LIBERTÉ OU HORIZON ?
Mini-maison clé en main, valorisable sur le foncier et non un mobil-home
Installation rapide en 1 journée, sans gros travaux
Structure acier garantie 10 ans, longue durée de vie
Isolation et confort thermique RE2020, équipements inclus : climatisation réversible, moderne et économe
100 % personnalisable : bureau, chambre, atelier, salle de sport ou location
Solution évolutive et écologique
INFORMATIONS RÉGLEMENTAIRES
Vendu sans terrain, module habitable mobile. Non soumis au DPE ni au GES, sauf si installation fixe et raccordement permanent aux réseaux.
CONTACT Christelle au 06 75 30 08 81 pour définir votre projet d’installation d’un Lodge Studio Liberté ou Horizon, de 15 à 100 m², livré et posé partout en France.
cette annonce à un ami
Veuillez réessayer à nouveau









































































